


Listing Courtesy of: MARIS - IDX as distributed by MLS GRID / Coldwell Banker Premier Group / Colleen "Colleen Psara" CunettoPsara
5623 Milentz Avenue St Louis, MO 63109
Coming Soon (1 Days)
$224,900 (USD)
OPEN HOUSE TIMES
-
OPENSun, Apr 261:00 pm - 3:00 pm
Description
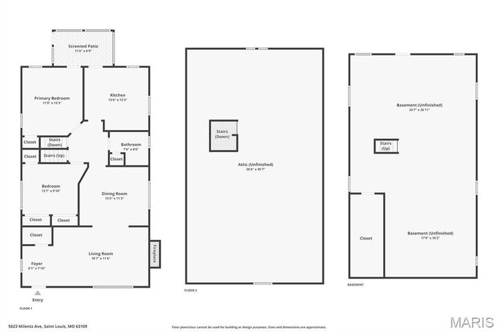
Old-world charm meets move-in ready” in this 2 bed, 1 bath Princeton Heights bungalow just off Hampton. Original hardwoods, vitrolite tile, period light fixtures, and stained-glass windows bring the character, while fresh paint, updated plumbing, new LVP kitchen flooring, and brand-new GE kitchen appliances (all included) make it easy to move right in. The walkout basement has been tuck-pointed, Drylok-sealed, and repainted—simple, clean storage space with a 2023 Rheem water heater and room for hobbies. Outside you’ll find an enclosed back porch, a roomy front porch, and a one-car parking pad off the alley, plus a long list of recent upgrades on the feature sheet and a passed City occupancy inspection already in place.
MLS #:
26022826
26022826
Taxes
$3,083(2025)
$3,083(2025)
Lot Size
4,373 SQFT
4,373 SQFT
Type
Single-Family Home
Single-Family Home
Year Built
1931
1931
School District
St. Louis City
St. Louis City
Listed By
Colleen "Colleen Psara" CunettoPsara, Coldwell Banker Premier Group
Source
MARIS - IDX
Last checked Apr 17 2026 at 1:42 AM GMT+0000
MARIS - IDX
Last checked Apr 17 2026 at 1:42 AM GMT+0000
Bathroom Details
- Full Bathroom: 1
Interior Features
- Gas Water Heater
- Dishwasher
- Tub
- Separate Dining
- Refrigerator
- Ice Maker
- Stainless Steel Appliance(s)
- Shower
- Gas Range
- Chandelier
- Built-In Features
- Range Hood
- Cedar Closet(s)
Subdivision
- Kingshighway Park Add
Lot Information
- Near Public Transit
- Level
- Front Yard
- Back Yard
Property Features
- Fireplace: Living Room
- Fireplace: Electric
- Fireplace: Ventless
Heating and Cooling
- Forced Air
- Central Air
- Ceiling Fan(s)
Basement Information
- Walk-Out Access
- Storage Space
- Full
- Unfinished
Utility Information
- Utilities: Water Connected, Natural Gas Connected, Electricity Connected, Sewer Connected
- Sewer: Public Sewer
School Information
- Elementary School: Buder Elem.
- Middle School: Long Middle Community Ed. Center
- High School: Roosevelt High
Parking
- Parking Pad
Stories
- One
Living Area
- 1,242 sqft
Location
Disclaimer: Square footage is based on information available to agent, including County records. Information has not been verified by agent and should be verified by buyer.
Based on information submitted to the MLS GRID as of 4/17/2026 01:42. All data is obtained from various sources and may not have been verified by broker or MLS GRID. Supplied Open House Information is subject to change without notice. All information should be independently reviewed and verified for accuracy. Properties may or may not be listed by the office/agent presenting the information.